HOUSE
台形敷地形状を生かした住宅
オヤコノイエ
2024.11
- 所在地沖縄県宜野湾市
- 階数地上1階
- 床面積84.66㎡
CONCEPTコンセプト
沖縄県・宜野湾市に建てられた注文住宅デザイン事例
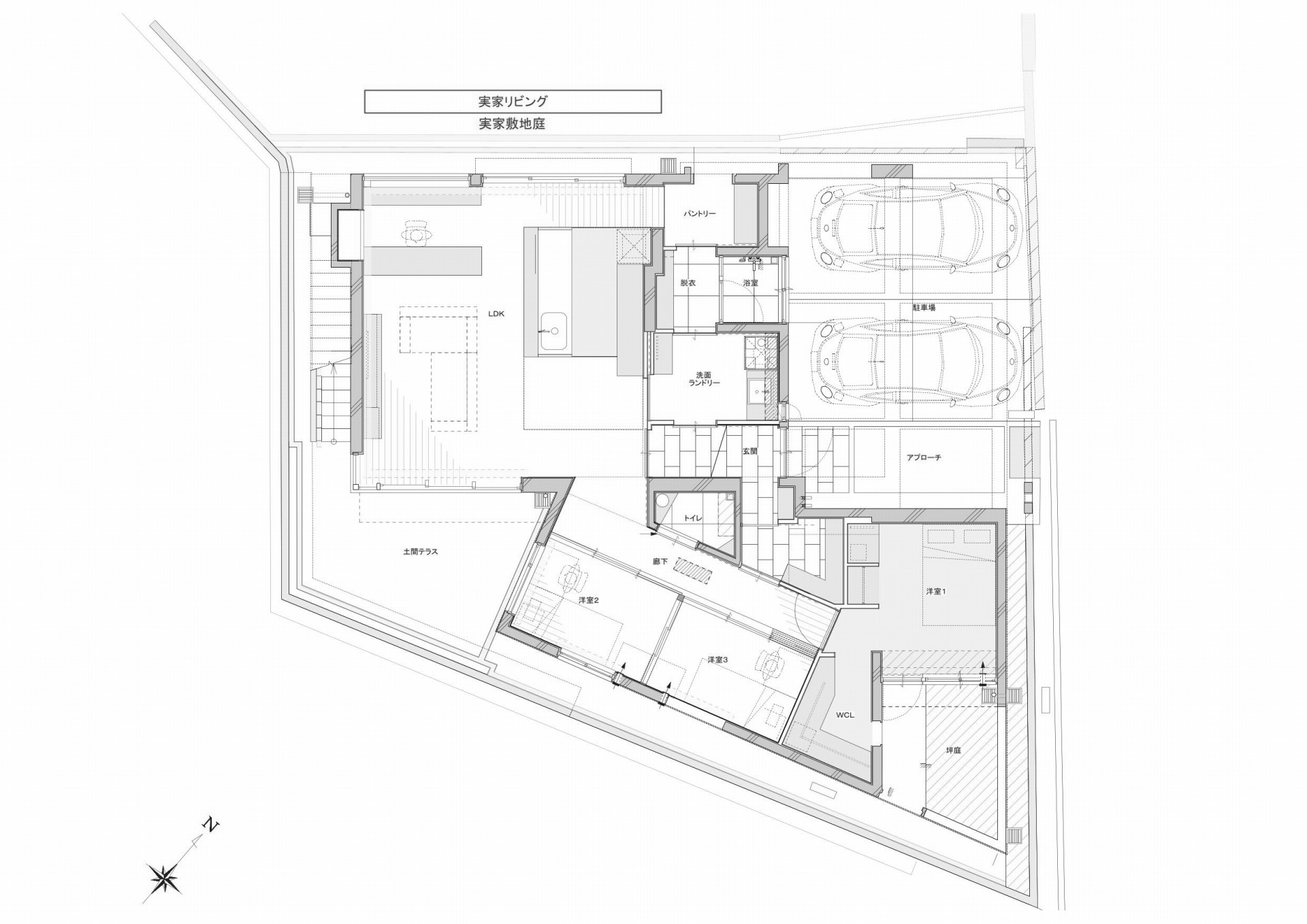
敷地は宜野湾市の住宅密集地に位置する。
約50坪の台形敷地。用途地域は第一種低層住居専用地域、建蔽率60%。理論上、建物に
使えるのは約30坪である。しかし車社会の沖縄では駐車スペースが不可欠であり、さらに
庭や庇も求められる。平屋で暮らしたいという要望を実現するには、敷地条件を丁寧に読
み解く必要があった。
敷地形状は、台形を回転・変形させたような独特のかたちをしている。四角い平面を効率
よく配置することは難しい。そこで制約を補正するのではなく、形状そのものを設計の骨
格として活かすことから計画を始めた。
もうひとつの重要な前提は、隣地に建つ施主の実家の存在である。
子育て世代にとって、実家との距離は日常を支える要素となる。LDKは実家のリビングと
庭に向けて配置し、キッチン横には大きな窓を設けた。この窓は採光のためだけでなく、
実家と視線を交わすための開口である。
実家の庭を介して互いの家を行き来できる動線は、第二の玄関のように機能する。南西側
の小さな庭に開く窓と、実家側の窓が同時に開かれることで、LDKには南北に抜ける風が
通る。視線と風が通い合い、距離を保ちながらも関係が持続する。
平面構成は、LDK・水回り・駐車スペースを敷地北側に整理し、残された三角形の領域に
子ども室と寝室を配置した。子ども室は廊下に面し、建具を開放すれば共用空間と一体化
する。トイレ周辺には回遊動線を設け、家の内部に緩やかな循環をつくった。
個室は独立しているが、固定された閉鎖性は持たない。開けば空間と連続し、閉じれば落
ち着きを確保する。部屋は部屋として存在しながら、一体にもなる構成である。
変形敷地という条件と、隣接する実家との関係。その双方を前提に、分断ではなく調整に
よって成り立つ平屋を目指した。
親と子が、それぞれの暮らしを尊重しながら隣り合って住まう住宅である。
PHOTO GALLERY
Facade南側外観
道路に対し水平ラインが特徴のファサード
PLAN平面図
Facade南側外観
道路面よりプライバシーに配慮しつつも、拒絶的にならない開口部を抑えた外観
Parking駐車場
梁のデザインは、道路側から視線を逸らし玄関を目立たせない
Parking駐車場
駐車場を見る
LDK
2面窓の採光により明るいリビング
LDK
キッチン奥の開口は、隣接する実家に行き来ができる掃き出し窓
Livingリビング
テラス側の開口はL字の窓を採用した
Dining kitchenダイニングキッチン
キッチンは、リビング天井と異なる素材を採用し空間にメリハリが生まれます。背面は収納と左奥にパントリーを配置
Detail納まり
電化製品使用のコンセント配置を集約しているキッチンカウンター。
LDK
薄いグレージュの壁と深い色合いの木目が温もりも感じる内装
Living
濃い色合い木目が美しいウォルナットのフローリング
Kitchenキッチン
下がり天井があっても閉塞感がなく夜の表情が映えるキッチン
Livingリビング
LDK脇のワークスペース
Study書斎
夜間は、心地よい明るさのペンダントライトで陰影のあるワークスペース
Kids space子供部屋
防音効果のある有孔ボードは壁面収納としても活用
Kids space子供部屋
建具で間仕切り可能な子供部屋
Bedroom寝室
寝室をみる
Wash basin洗面室
トップライトからの自然光で明るい洗面室
Rest roomトイレ
トップライトからの自然光で明るいトイレ
撮影:井田佳明





















